Апартаменты-дуплекс в аттическом стиле, Алимос, Афины
300 000 € — 330 000 €
54 м² • От 4 459,46 € м²
ВНЖ в Греции
От 250 000 €От 4 месяцевНедвижимость подходит для получения ВНЖ в Греции за инвестиции.
Иммигрант Инвест помогает подобрать недвижимость и стать резидентом Греции.
Узнать подробнееСтоимость
Цены
300 000 € — 330 000 €
Стоимость м²
4 459,46 € — 5 555,56 €
Расстояния
Доходность и управление
Доходность
3-5% в год
Управление недвижимостью
Есть
Описание
Данный объект расположен в престижном районе "Алимос" (Южные Афины). Супермаркеты, кафе, рестораны, аптеки, салоны красоты и все необходимые удобства есть рядом. На этой территории хорошая экология и транспортная доступность. Можно быстро добраться до "Hellinikon", пляжей "Kalamaki"и "Glifada", "Verita International School".
Современная архитектура, интерьер в светлых тонах формируют гармоничное пространство для жизни и отдыха. Большие окна с видом на парк, зеленые насаждения, окружающий пейзаж наполняют помещения естественным светом. Удобное расположение на "нулевом" и 1 этажах создает дополнительный комфорт.
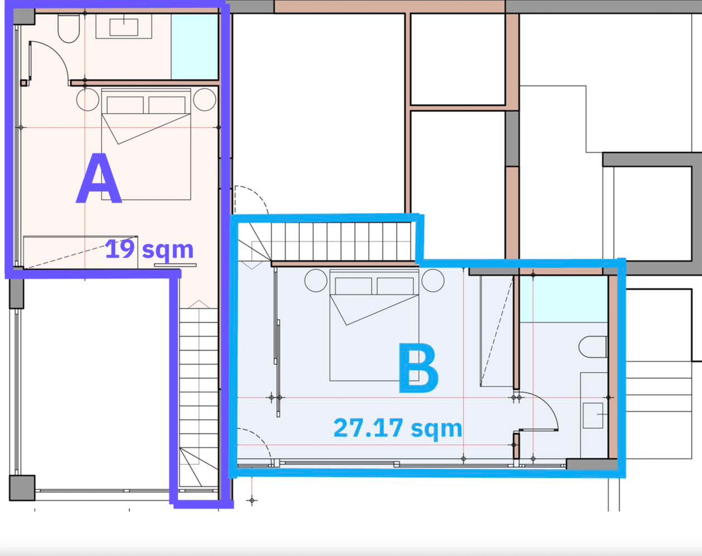
К продаже предлагаются 2 дуплекс апартамента в античном стиле (по 2 спальни в каждом):
- апартаменты А: 300 000 €, 54 кв.м., 20 кв.м. сад,
- апартаменты B: 330 000 €, 74 кв.м., 20 кв.м. сад.
Преимущества проекта:
- актуальный дизайн
- развитая инфраструктура
- высококачественные материалы
Данный объект подходит для опции 250 000 € (новые требования).
Недвижимость
Тип объекта
Категория объекта
Реконструкция
Стадия объекта
Строительство
Разрешительная документация
Есть
Особенности оформления
Собственность
Характеристики
Общая Площадь
54 м² — 74 м²
Этажность
5
Спальни
2
Ванны
2
Парковка
Нет
Ремонт
Стандартный
Мебель
Частично мебелированная
Вид
на город, на сад, на дорогу
Оборудование
Свойства
Местоположение
Афины: Похожие предложения
Греция: Лучшие объекты
Другие предложения
Запланировать встречу
Ответим на любой вопрос
Запланируйте встречу в одном из офисов или в онлайне. Юрист проанализирует ситуацию, сделает расчет стоимости и поможет найти решение исходя из ваших целей.
























